Особенности дома
- Объем комплекта клееного бруса (внешние стены, перегородки, лаги крыши, стойки, опоры) - 134,42 м3.
- Сечение бруса ширина х высота(2ая возможная высота) - 210х168(180).
- Доставка в разобранном виде или сборка у Вас на участке
- Общая площадь: 248 м2.
- Этажность: 2-х этажный.
- Стены наружные: Т-210мм.
- Стены внутренние: Т-210 мм.
Спецификация проекта
- Фундамент: тип в зависимости от состава грунта и требований Заказчика, стоимость фундамента от 70у.е. м.кв.
- Стены внешние: клееный брус, сосна – толщина от 140мм, высота видимой части- 160 мм
- Стены внутренние: клееный брус, сосна – толщина 140мм, высота видимой части- 160 мм
- Перекрытие: балки сечением 60х120 тех сушка, отделка потолка - имитация бруса
- Утепление перекрытия: маты Ursa – 100 мм
- Стропильная система: балки, сосна - сечение 60х120, тех сушка
- Основание под кровельное покрытие: плита ОСБ -3
- Кровельное покрытие: гибкая черепица
- Окна: деревянные стеклопакеты, конфигурации по требованию Заказчика
- Двери: деревянные либо металлические, конфигурации по требованию Заказчика
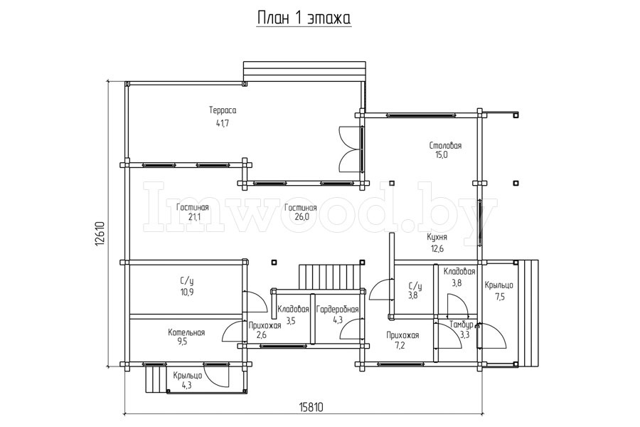
Планировка, 1 этаж
Планировка, 2 этаж













